Moderne og sentrale kontorlokaler til leie i Bergens handlegate. Lokalene ligger i eiendommens 4. etasje og tilpasses etter nye leietakers ønsker og behov. Kontorlokalene har egen inngang fra Strandgaten og tilkomst med felles heis til egne lokaler.

Fasiliteter

Aircondition, Alarm, Bredbåndstilknytning, sykkelparkering, garderobe og heis.

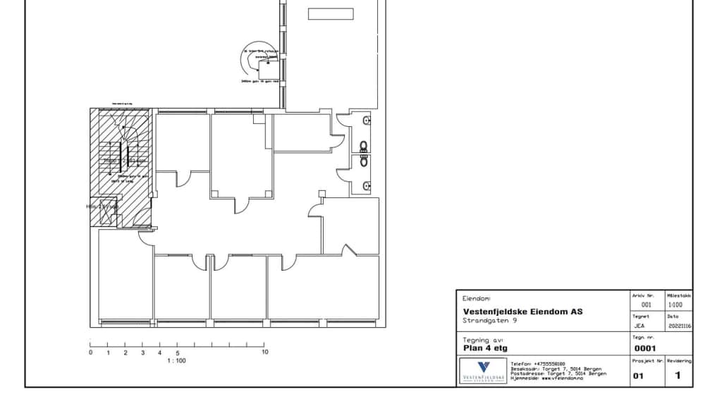
Antall kontorplasser: Ca. 15

  • 3 Store kontorer med mulighet for å sitte 2 personer på hvert kontor
  • 1 Felles landskap med mulighet for å sitte 6 personer
  • 2 store møterom kan gjøres om til landskap eller kontorer store gode vinduer
  • 1 grupperom
  • 2 toaletter/bad med dusj
  • 1 kjøkken med spiserom/ fellesareal
  • Stort fellesareal med resepsjon og garderobe

Om Strandgaten 9

Strandgaten var på et tidspunkt Norges travleste forretningsgate. En trafikktelling fra 1914 viste 50 000 spaserende gjennom gaten i løpet av bare 18 timer. Over 100 år etter er Strandgaten fortsatt en sentral del av forretningslivet i Bergen, og er godt kjent som handlegaten i Bergen sentrum. Her har du kort vei til bybane, buss til alle bydeler (og flybuss), samt alle byens fasiliteter.

Beliggenhet

Bygget har adresse Strandgaten 9 og ligger i nærheten av både Torgallmenningen, Fisketorget og Bryggen.

Området er meget attraktivt, og vi ser økende interesse for å etablere seg i Strandgaten. Det er flere nye, spennende etableringer de siste årene. Vi ser en økende kundetilstrømming til hele Strandgaten.

Leietakerne våre i Strandgaten 9 er: Apotek 1, Alvergruppen, Kontorfellesskapet Pivot Invest, Advokatfirma Mæland & Co

Kommunikasjon og parkering
Bergen Sentrum har offentlig kommunikasjon til alle bydeler. Både flybussen og bybanen nås på et par minutters gange. Det er parkeringsmuligheter både i Klostergarasjen og i City Park. EL-biler kan parkere til halv pris i Bygarasjen, som kun er ca. 10 min. spasertur unna.