1. Moderne og fleksible kontorlokaler i hjertet av Bergen sentrum

Lyse og arealeffektive kontorlokaler til leie i Bergens mest attraktive handlegate. Lokalene ligger i byggets 4. og 5. etasje, og vil innredes etter leietakers ønsker og behov. Kontorlokalene har egen inngang fra Strandgaten, samt tilkomst med felles heis direkte til lokalene.

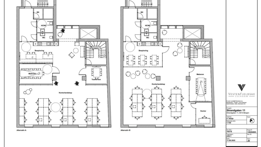
Vi tilbyr skreddersydde løsninger for hver enkelt leietaker, og etasjene kan enkelt kobles sammen dersom det er ønskelig. Se bildene i annonsen for inspirasjon til hvordan lokalene kan utformes.


Ledige arealer

Vi har for tiden to ledige arealer:

  • Plan 4: 296 m² BTA (inkludert fellesareal)

Fasiliteter

  • Aircondition
  • Alarm
  • Bredbåndstilknytning
  • Sykkelparkering
  • Garderobe
  • Heis

Om bygget

Strandgaten 11 ble oppført i 1916, etter Bergensbrannen som la store deler av sentrum i aske. Bygget er tegnet av den kjente arkitekten Sigurd Lunde, og har vært et sentralt forretningsbygg i over 100 år.

Strandgaten var tidligere Norges travleste forretningsgate – en trafikktelling fra 1914 viste 50 000 spaserende gjennom gaten på bare 18 timer. I dag er gaten fortsatt en sentral del av byens forretningsliv, med kort vei til bybane, buss, flybuss og alle byens fasiliteter.


Beliggenhet

Strandgaten 11 har en svært attraktiv beliggenhet, med kort avstand til Torgallmenningen, Fisketorget og Bryggen. Området har hatt flere nye og spennende etableringer de siste årene, og vi ser en økende kundetilstrømming til hele gaten.


Kommunikasjon og parkering

Bergen sentrum har offentlig kommunikasjon til alle bydeler. Både flybussen og bybanen er kun et par minutters gange unna. Det er gode parkeringsmuligheter i både Klostergarasjen og City Park. EL-biler kan parkere til halv pris i Bygarasjen, som ligger ca. 10 minutters gange fra bygget.


Leietakere i bygget

I bygget holder det til flere spennende leietakere. Disse er Kicks, Frisørskolen, Trafikkland, SRF, Dråpe Media, FunBit og Arko AS.

Ta gjerne kontakt for visning eller en uforpliktende samtale!

Moderne og sentrale kontorlokaler til leie i Strandgaten 11, i Bergen sentrum | FINN eiendom